Dental Office Remodel
Phased remodel for a general dentist office
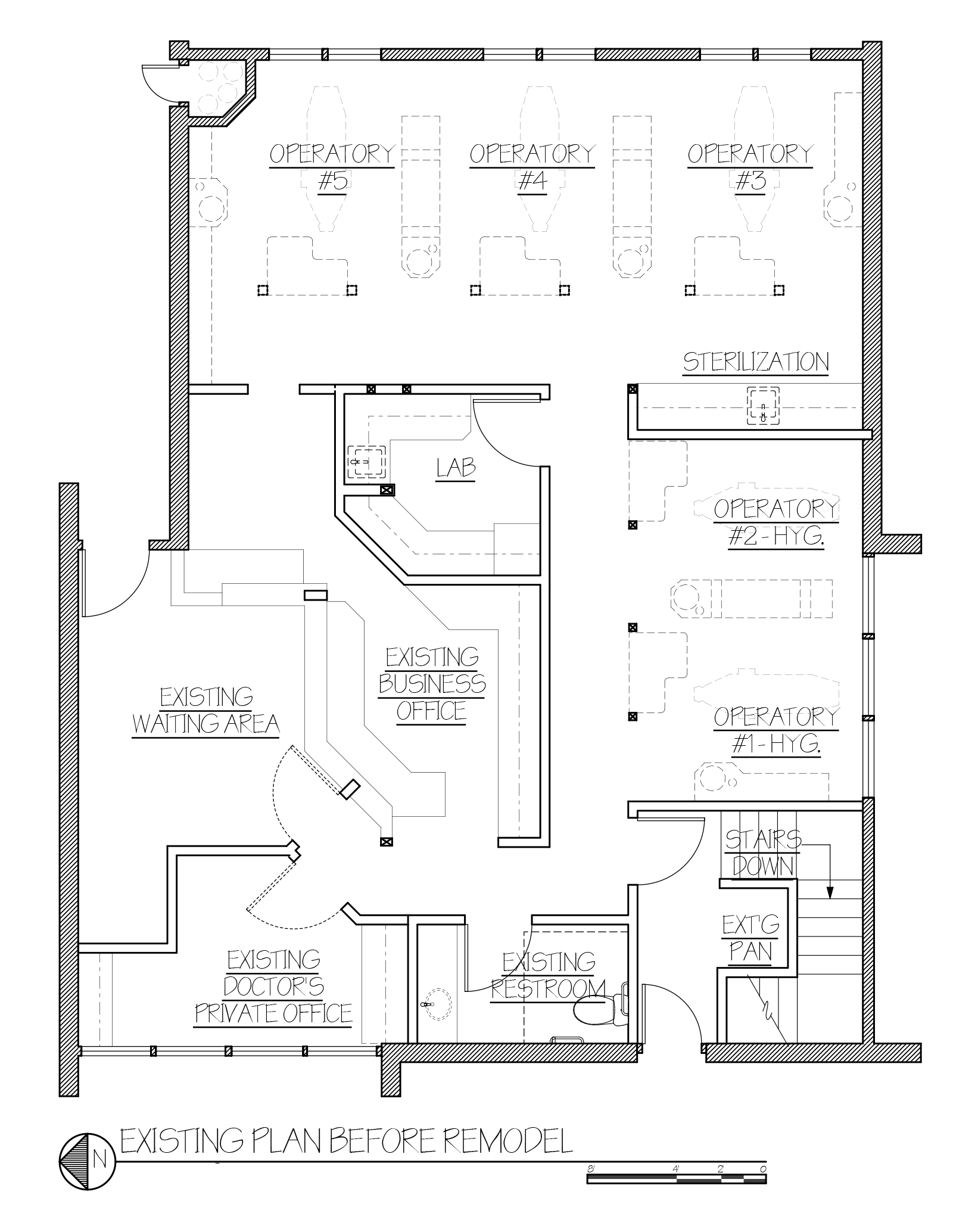
Before photos and floorplan
After photos and floorplan
Phased remodel for a general dentist office
Before photos and floorplan
After photos and floorplan